|
|
 |
|
 |
|
|
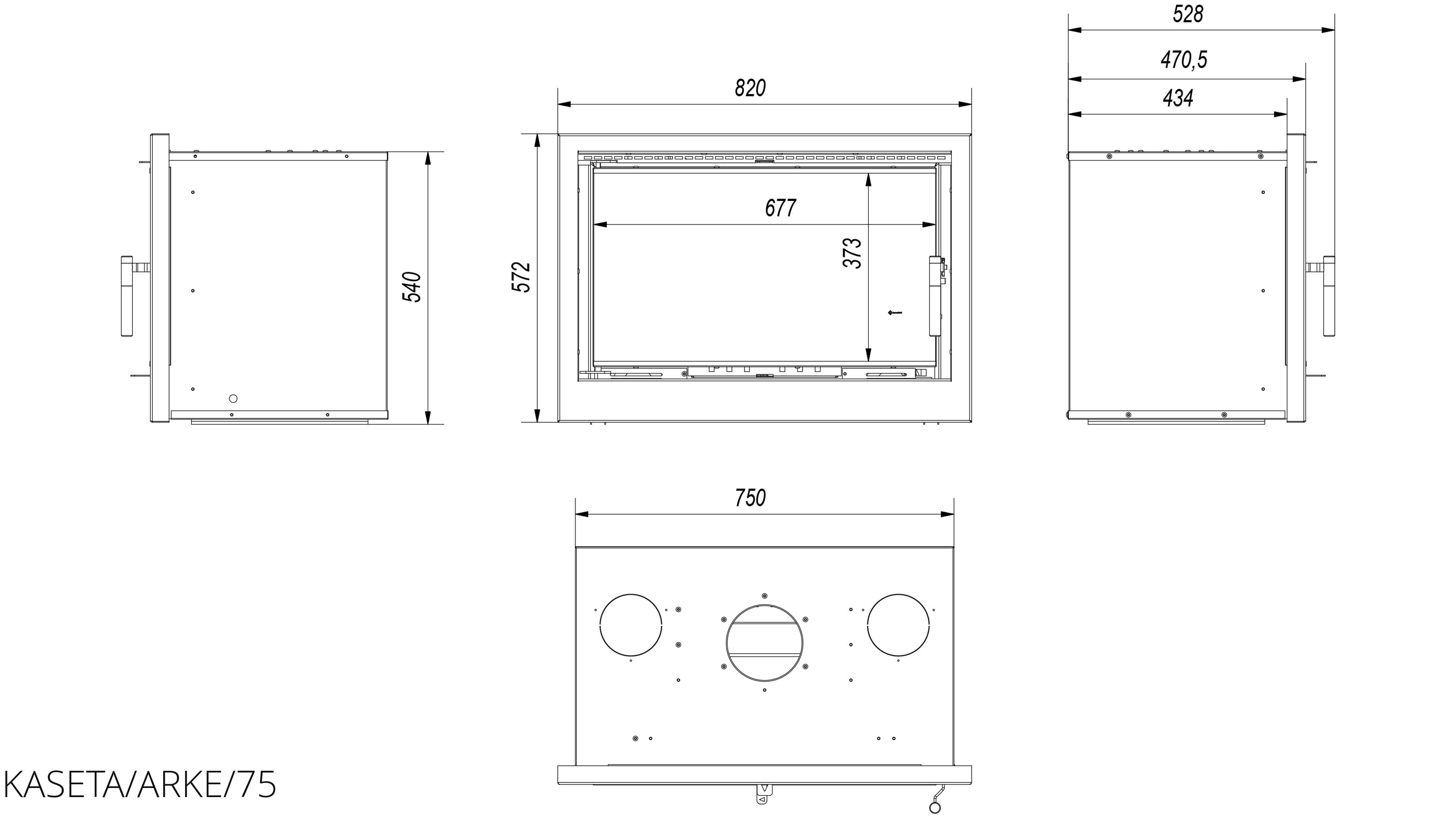
Печка KRATKI KASETAARKE
Забір повітря в топку З зовнішнього середовища
месяцев
|
|
| |
| Произваодитель: | KRATKI | | Размищение: | Встраиваемая | | Материал топки: | Шамот | | К.П.Д.: | 75 % | | Номинальная мощность: | 12 кВт | | Диапазон мощности: | 3.5 - 10.0 | | Вид твердого топлива: | Дрова, Пелеты, Брикеты | | Температура дымовых газов: | 165,0 | | Материал изготовления: | Метал / Чугун | | Режим работы топки: | Тривале горіння | | Подключение дымахода: | Верхнее | | Диаметр дымохода: | 150 | | Камера двойного згорания: | да | | Способ отопления: | Повітряне Опалення | | Особенности: | Длительное горение | | Вес: | 128 кг | | Розмер: | 520x760x470 | | Длина поленьев: | 30 см | | Производитель: | Польша | | Гарантия: | 60 |
|
Камін KASETA ARKE 12
1. Корпус каміну виконаний зі сталі, призначеної для високих температур.
2. Сталеві деталі вирізаються лазером, після чого вигинаються на верстатах CNC.
3. Корпус зварюється за допомогою зварювального робота з використанням спеціального газу, який забезпечує високу якість швів.
4. Стандартний внесок містить зовнішнє декораційне скло типу GLASS, котре витримує температуру до 800 градусів. Скло оздоблене методом трафаретного друку, що надає каміну сучасного елегантного вигляду і оптично розширює передню каміну.
5. Поділене бічне скло – камін має 2 скла, складених між собою під прямимо кутом.
6. Спеціальна вертикальна будова димоходу дозволяє отримати наступні переваги:
- збільшує поверхню теплообміну між внеском і зовнішнім середовищем;
- зниження температури димових газів дозволяє підвищити ефективність пристрою.
7. Дверцята каміну виконані з замкненого профілю, що робить їх більш стійкими і витривалими під час роботи при високих температурах. Дверцята спеціально ущільнені, що запобігає можливим випадам під час експлуатації.
8. Дефлектор збільшує шлях димових газів, спалювання є більш екологічним.
9. Камін безвідходний – є функція догорання попелу. Нижня пластина вкладом розташована значно нижче дверей, паливо згорає до дрібного попелу, а енергія з дерева максимально використовується.
10. Камін має вбудований роз'єм для споживання зовнішнього повітря. Регуляція забору повітря контролюється лише одним регулятором, що виключає помилки неправильного використання.
11. Внесок має потрійну систему вентиляції камери згоряння:
- первинне повітря подається по всій ширині печі через проріз у смузі, що становить безпечну перегородку, розташовану на передній стороні вогнища;
- завантаження вторинної камери згоряння здійснюється через відчини в задній стінці - система допалювання димових газів відповідає за скорочення викидів шкідливих речовин в навколишнє середовище і підвищення ефективності каміну;
- камін також має повітряну завісу - система чистого скла без забору повітря з приміщення. Повітря подається по спеціальних каналах розташованих з боків каміна в камеру, розташовану у верхній частині вкладу і рівномірно розподіляється по склі, по всій його ширині. Повітря направляється через рульове колесо "зачисток" вікна прагнучи підняти його від вогню і диму, що значно знижує осадження сажі на нього таким чином, що він залишається чистимо.
12. Чавунна труба з якої виходить дим є рухома і складається з 2 частин. Регулюється на 360 градусів( Може бути спрямована як тому, так і вгору).
13. Камера згоряння викладена з матеріалу Acumotte - матеріал накопичує тепло, що підвищує температуру в камері згоряння, допомагає поліпшити параметри горіння.
14. Гарантія 5 років.
ПОДІБНІ ТОВАРИ КОМПАНІЇ
Будьте первым! Поставьте оценку, оставьте отзыв о товаре Печка KRATKI KASETAARKE:
Печка KRATKI KOZAK8ASDP
,
Печка KRATKI MAJA PW 12 W DECO
,
Печка KRATKI AMELIAPW28WDECO
,
Печка KRATKI KOZAK8T
,
Печка KRATKI WIKTOR LUX
,
Печка KRATKI ERYK PF
,
Печка KRATKI ZUZIA PF
,
Печка KRATKI ANTEK PF
,
Печка KRATKI MAJA PF
,
Печка KRATKI ANTEK G
,
Печка KRATKI KOZAORBIT
,
Печка KRATKI ZUZIA LPT
,
Печка KRATKI AMELIA EKO
,
Печка KRATKI KOZAK5SWD
,
Печка KRATKI MAJA DECO
,
Печка KRATKI WIKTOR PF
,
Печка KRATKI AMELIA LUX
,
Печка KRATKI AQURIOM12PWW
,
Печка KRATKI KOZAK7
,
Печка KRATKI KOZAK7ASDP
,
Печка KRATKI KOZAK7TF
,
Печка KRATKI KOZAK6
,
Печка KRATKI KOZAK10
,
Печка KRATKI KOZAK6PWW
,
Печка KRATKI KOZAK9
,
Печка KRATKI KOZAK8
,
Печка KRATKI KOZAK6ASDP
,
Печка KRATKI KOZAK5
,
Печка KRATKI KOZAK10TF
,
Печка KRATKI KOZAVEGA
,
Печка KRATKI KOZAK10ASDP
,
Печка KRATKI KOZAK9PWW
,
Печка KRATKI KOZAK8TF
,
Печка KRATKI KOZAK5SW
,
Печка KRATKI KOZAK5SN
,
Печка KRATKI KOZAABSDR
,
Печка KRATKI KOZAK9ASDP
,
Печка KRATKI KOZAK9ASDP
,
Печка KRATKI KOZAABSNDR
,
Печка KRATKI KOZA PICARD
,
Печка KRATKI KOZA PROTON
,
Печка KRATKI KOZA EPSILON
,
Печка KRATKI KOZA AB S N O DR
,
Печка KRATKI KOZA AB
,
Печка KRATKI KOZA TITAN
,
Печка KRATKI KOZA AB S 2
,
Печка KRATKI FALCON
,
Печка KRATKI KOZA ENYO
,
Печка KRATKI JUNO 12 B (white)
,
Печка KRATKI JUNO 12 C (black)
,
Печка KRATKI KOZA AB S N GLASS
,
Печка KRATKI THOR
,
Печка KRATKI FALCON W
,
Печка KRATKI FALCON VIEW
,
Печка KRATKI KOZA ENYO R
,
Печка KRATKI KOZA AB S DR KAFEL BIALY (white)
,
Печка KRATKI KOZA AB S DR KAFEL CZERWONY (red)
,
Печка KRATKI KOZA AB S DR KAFEL CZARNY (black)
,
Печка KRATKI THOR VIEW
,
Печка KRATKI KOZA AB S N O GLASS
,
Печка KRATKI KOZA AB S N O KAFEL CZARNY (black)
,
Печка KRATKI KOZA AB S N O KAFEL BIALY (white)
,
Печка KRATKI ANTARES
,
Печка KRATKI KOZA AB S N O GLASS KAFEL CZERVONY (red)
,
Печка KRATKI KOZA AB S N O GLASS KAFEL CZARNY (black)
,
Печка KRATKI KOZA AB S N O KAFEL CZERVONY (red)
,
Печка KRATKI KOZA AB S N O GLASS KAFELBIALY (white)
,
Печка KRATKI ANTEK DECO
,
Печка KRATKI ERYK 700
,
Печка KRATKI ZUZIA 700
,
Печка KRATKI ERYK LUX
,
Печка KRATKI ERYK DECO
,
Печка KRATKI MAJA LP
,
Печка KRATKI ZUZIA LUX
,
Печка KRATKI MAJA L (P)
,
Печка KRATKI FELIX PF
,
Печка KRATKI OLIWIA PF
,
Печка KRATKI SIMPLE M 8 ПРАВА BS
,
Печка KRATKI ZUZIA EKO
,
Печка KRATKI WIKTOR DECO
,
Печка KRATKI ZUZIA DECO
,
Печка KRATKI OLIWIA LUX
,
Печка KRATKI FELIX DECO
,
Печка KRATKI ZUZIA L
,
Печка KRATKI AMELIA PF
,
Печка KRATKI FELIX LUX
,
Печка KRATKI Zosia
,
Печка KRATKI OLIWIA DECO
,
Печка KRATKI SIMPLE Z 16
,
Печка KRATKI ZUZIA LP
,
Печка KRATKI MAJA L BS
,
Печка KRATKI OLIWIA L (P)
,
Печка KRATKI OLIWIA LP
,
Печка KRATKI ZUZIA L BS (P)
,
Печка KRATKI MAJA W
,
Печка KRATKI AMELIA LP
,
Печка KRATKI MAJA L BS G (P)
,
Печка KRATKI ZUZIA T
,
Печка KRATKI FRANEK 10 PF
,
Печка KRATKI ERYK G
,
Печка KRATKI MAJA G
,
Печка KRATKI ZUZIA L BS DECO
,
Печка KRATKI OLIWIA L BS
,
Печка KRATKI WIKTOR G
,
Печка KRATKI ZUZIA LT (PT)
,
Печка KRATKI Franek 12 PF
,
Печка KRATKI OLIWIA L BS DECO (P)
,
Печка KRATKI OLIWIA T
,
Печка KRATKI Franek 14 PF
,
Печка KRATKI AMELIA L BS (P)
,
Печка KRATKI ZUZIA G
,
Печка KRATKI AMELIA L BS DECO (P)
,
Печка KRATKI AMELIA G
,
Печка KRATKI OLIWIA LT (PT)
,
Печка KRATKI AMELIA T
,
Печка KRATKI ZUZIA L BS G (P)
,
Печка KRATKI FELIX G
,
Печка KRATKI OLIWIA LPT
,
Печка KRATKI AMELIA LT (P)
,
Печка KRATKI OLIWIA G
,
Печка KRATKI OLIWIAL BS G (P)
,
Печка KRATKI AMELIA LPT
,
Печка KRATKI AMELIA L BS G (P)
,
Печка KRATKI WIKTOR PW 12W
,
Печка KRATKI MAJA PW 12 W
,
Печка KRATKI ERYK PW 10 W DECO
,
Печка KRATKI ANTEK PW 8 W
,
Печка KRATKI ERYK PW 10 W
,
Печка KRATKI ANTEK PW 8 W DECO
,
Печка KRATKI FELIX PW 14 W
,
Печка KRATKI FELIX PW 14 W DECO
,
Печка KRATKI ANTEKPW8GW
,
Печка KRATKI ZUZIA PW 15 W
,
Печка KRATKI ZUZIA PW 19 W
,
Печка KRATKI ZUZIA PW 15 W DECO
,
Печка KRATKI OLIWIA PW 17 W
,
Печка KRATKI ZUZIA PW 19 W DECO
,
Печка KRATKI LUCY PW 12 W
,
Печка KRATKI AQURIO M 8 PW W
,
Печка KRATKI NADIAPW10W
,
Печка KRATKI OLIWIAPW22W
,
Печка KRATKI OLIWIAPW17WDECO
,
Печка KRATKI OLIWIAPW22WDECO
,
Печка KRATKI AMELIAPW24W
,
Печка KRATKI AMELIAPW24WDECO
,
Печка KRATKI LUCYPW16W
,
Печка KRATKI MAJAPWBL12W (P)
,
Печка KRATKI MAJAPWBL12BSW
,
Печка KRATKI MBMPW10W
,
Печка KRATKI OLIWIAPWBL17W (P)
,
Печка KRATKI OLIWIAPWBL22W (P)
,
Печка KRATKI MAJAPWBL12BSWDECO (P)
,
Печка KRATKI ZUZIATPW19W
,
Печка KRATKI LUCYPW20W
,
Печка KRATKI MBZPW13W
,
Печка KRATKI AQURIOZ10PWW
,
Печка KRATKI ZUZIAPWBL15W (P)
,
Печка KRATKI ZUZIAPWBL15BSW (P)
,
Печка KRATKI MAJAPW12GW
,
Печка KRATKI ZUZIAPWBL15BSWDECO (P)
,
Печка KRATKI ZUZIAPW15GW
,
Печка KRATKI ZUZIAPWBL19BSW (P)
,
Печка KRATKI FELIXPW14GW
,
Печка KRATKI ZUZIAPW19GW
,
Печка KRATKI ZUZIAPWBL19BSWDECO (P)
,
Печка KRATKI AQURIOA14PWW
,
Печка KRATKI OLIWIAPWBL17BSW (P)
,
Печка KRATKI AMELIAPW28GW
,
Печка KRATKI AQURIOZ14PWW
,
Печка KRATKI OLIWIAPWBL17BSWDECO (P)
,
Печка KRATKI OLIWIAPWBL22BSW (P)
,
Печка KRATKI OLIWIAPWBL22BSWDECO (P)
,
Печка KRATKI MBMPW10GW
,
Печка KRATKI OLIWIAPW22GW
,
Печка KRATKI AQURIOO16PWW
,
Печка KRATKI AQURIOA18PWW
,
Печка KRATKI MBZPW13GW
,
Печка KRATKI MILAPW24GW
,
Печка KRATKI JASPF
,
Печка KRATKI BASIAPF
,
Печка KRATKI ZIBIPF
,
Печка KRATKI MILATG
,
Печка KRATKI BLANKAPF
,
Печка KRATKI BLANKALBS (P)
,
Печка KRATKI BLANKA670570
,
Печка KRATKI ZIBILBS (P)
,
Печка KRATKI NADIA8
,
Печка KRATKI BLANKALPBS
,
Печка KRATKI LUCY12SLIM
,
Печка KRATKI BLANKA670570LPBS
,
Печка KRATKI BLANKA670570LPBS
,
Печка KRATKI LUCY12
,
Печка KRATKI NADIA10
,
Печка KRATKI BLANKA670570LBS (P)
,
Печка KRATKI KASETAARKE95
,
Печка KRATKI NADIA9
,
Печка KRATKI MBMPF
,
Печка KRATKI LUCY14SLIM
,
Печка KRATKI MBNLBS (P)
,
Печка KRATKI LUCY14
,
Печка KRATKI LUCYLBS12 (P)
,
Печка KRATKI MBZPF
,
Печка KRATKI ZIBIG
,
Печка KRATKI NADIA12
,
Печка KRATKI BLANKA910
,
Печка KRATKI MILAPF
,
Печка KRATKI MBMLBS (P)
,
Печка KRATKI MBOPF
,
Печка KRATKI LUCY15
,
Печка KRATKI LUCY16
,
Печка KRATKI NADIA13
,
Печка KRATKI LUCY14LBS (P)
,
Печка KRATKI NADIA14
,
Печка KRATKI КАМІННА ТОПКА MBN 680 ПРАВА
,
Печка KRATKI КАМІННА ТОПКА MBN 680 ЛІВА
,
Печка KRATKI Камінна топка NBC680280 (бічне відкриття)
,
Печка KRATKI LUCY12T
,
Печка KRATKI MBAPF
,
Печка KRATKI MBZLBS (P)
,
Печка KRATKI NADIA10G
,
Печка KRATKI MBMG
,
Печка KRATKI MBOLBS (P)
,
Печка KRATKI MILAT
,
Печка KRATKI LUCY14T
,
Печка KRATKI NADIA12G
,
Печка KRATKI MILAG
,
Печка KRATKI Камінна топка VNL(P) 480480
,
Печка KRATKI MBZG
,
Печка KRATKI MBALBS (P)
,
Печка KRATKI NADIA13G
,
Печка KRATKI Камінна топка VNL(P) 610430
,
Печка KRATKI SIMPLE BOX SMART Лівий чорний
,
Печка KRATKI SIMPLE BOX SMART Правий чорний
,
Печка KRATKI SIMPLE BOX SMART Правий білий
,
Печка KRATKI SIMPLE BOX SMART Лівий білий
,
Печка KRATKI MBOG
,
Печка KRATKI MBMLBSG (P)
,
Печка KRATKI NADIA14G
,
Печка KRATKI MBAG
,
Печка KRATKI NADIA14LBSG (P)
,
Печка KRATKI Камінна топка VNL(P) 700480
,
Печка KRATKI MBZLBSG (P)
,
Печка KRATKI MBOLBSG (P)
,
Печка KRATKI MB100G
,
Печка KRATKI Камінна топка VNL(P) 810410
,
Печка KRATKI MBALBSG (P)
,
Печка KRATKI Камінна топка NBC500500
,
Печка KRATKI Камінна топка NBC600400
,
Печка KRATKI MB120G
,
Печка KRATKI Камінна топка NBC800400
,
Печка KRATKI NBU500700
,
Печка KRATKI HOME EASY BOX NBC 7 Білий
,
Печка KRATKI HOME EASY BOX NBC 7 Чорний
|